空き家物件詳細
更新日
2025.09/08
No.117
募集中
売家
[山手町の空家]
- 子育てにおすすめ
写真[1/23]
|
売家価格
50,000円
|
木造2階建て |
4DK |
子育て向き物件
おすすめポイント!
- 山手小学校まで徒歩5分山手小学校まで徒歩5分山手小学校まで徒歩5分
- 近くにスーパーあり
- 近くに公園あり
- 近くに学童あり
| 物件登録番号 | 117 | ||
|---|---|---|---|
| 所在地 | 山手町 (中部地区 佐世保中央地域) [MAP] | ||
| 敷地面積 | 162.23 ㎡ | 延床面積 | 95.66 ㎡ |
| 築年数 | 55 年 | 空き家期間 | 2 年 |
| 敷金 | 0 円 | 礼金 | 0 円 |
| 備考 |
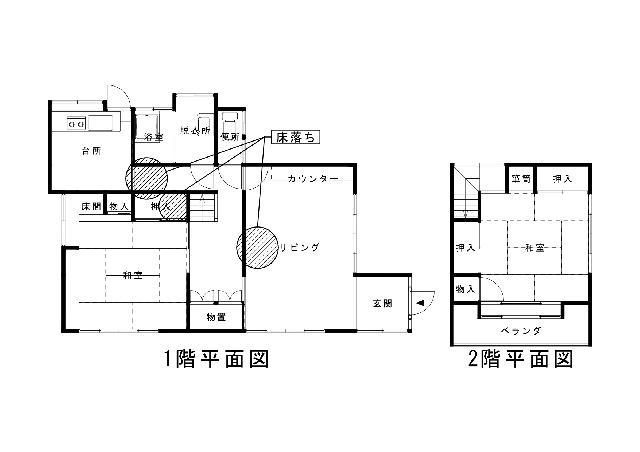
1.急傾斜地特別警戒区域(崩壊時に建築物が損壊し、生命や身体に重大な危害が生じる恐れがある区域)であるため、「居室を有する建築物」を建築しようとする場合には、指定区域に設定された衝撃力に対して安全な構造とする必要があります。 2.床落ちがあり、危険個所があります。 3.借地です。(売家価格は建物のみとなります。) |
||
建物の特徴
| 補修の要否 | 床の補修、水回り補修等 | ||
|---|---|---|---|
| 駐車場 | 無し | ||
| 庭 | 無し | 畑 | 無し |
| 設備 |
|
||
| その他の特長 | |||
交通・周辺環境
| 最寄り駅・バス停 | 山手町バス停 | ||
|---|---|---|---|
| 最寄り施設 | 佐世保市役所 | ||
間取り図 [-]
※現況と図面に相違があった場合、現況を優先します。
※敷地境界は参考になりますので、売買の際は売主様とご確認をお願いします。
※敷地境界は参考になりますので、売買の際は売主様とご確認をお願いします。
一覧に戻る

































