空き家物件詳細
更新日
2025.11/21
No.122
募集中
売家
[大黒町の空き家]
- まちなか暮らし
- 交通が便利
写真[1/62]
|
売家価格
2,700,000円
|
木造2階建て |
5DK |
| 物件登録番号 | 122 | ||
|---|---|---|---|
| 所在地 | 佐世保市大黒町 (中部地区 佐世保中央地域) [MAP] | ||
| 敷地面積 | 225.32 ㎡ | 延床面積 | 111.25 ㎡ |
| 築年数 | 48 年 | 空き家期間 | 1 年 |
| 敷金 | 0 円 | 礼金 | 0 円 |
| 備考 | |||
建物の特徴
| 補修の要否 | 雨樋、窓 | ||
|---|---|---|---|
| 駐車場 | 無し | ||
| 庭 | 無し | 畑 | 無し |
| 設備 |
|
||
| その他の特長 | |||
交通・周辺環境
| 最寄り駅・バス停 | 福石中学校前バス停 | ||
|---|---|---|---|
| 最寄り施設 | 佐世保市南地区コミュニティセンター | ||
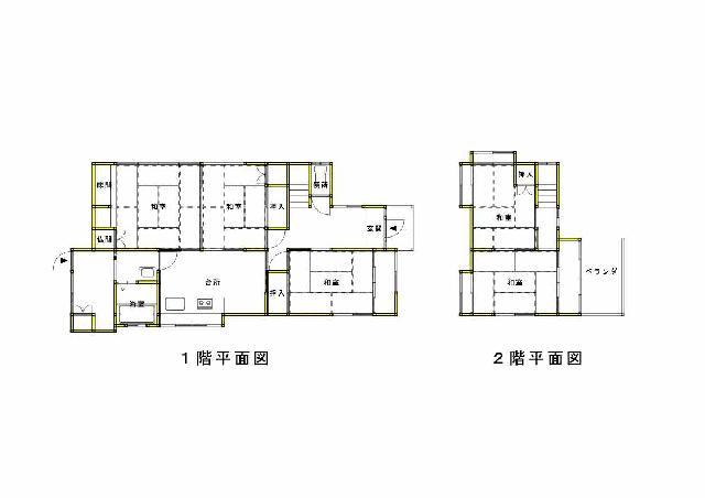
間取り図 [-]
※現況と図面に相違があった場合、現況を優先します。
※敷地境界は参考になりますので、売買の際は売主様とご確認をお願いします。
※敷地境界は参考になりますので、売買の際は売主様とご確認をお願いします。
一覧に戻る







































































