空き家物件詳細
更新日
2024.04/01
No.87
募集中
売家
[日野町の空き家]
- 田舎暮らし
写真[1/36]
|
売家価格
3,500,000円
|
木造平屋建て |
5DK |
| 物件登録番号 | 87 | ||
|---|---|---|---|
| 所在地 | 日野町 (中部地区 相浦地域) | ||
| 敷地面積 | 604.94 ㎡ | 延床面積 | 52.89 ㎡ |
| 築年数 | - | 空き家期間 | 4 年 |
| 敷金 | 0 円 | 礼金 | 0 円 |
| 備考 |
1.土砂災害警戒区域(土石流・急斜面地) 2.土砂災害特別警戒区域(急斜面地) 3.市街化調整区域内(建築等が制限される区域) https://www.city.sasebo.lg.jp/tosiseibi/kentiku/kaihatsukyoka.html 4.鵜戸越風致区内(佐世保市風致地区内における建築等の規制に関する条例第2条に掲げる以下の行為を行う際には、着手前に申請等が必要) https://www.city.sasebo.lg.jp/tosiseibi/machis/fuchi.html |
||
建物の特徴
| 補修の要否 | 不要 | ||
|---|---|---|---|
| 駐車場 | 無し | ||
| 庭 | 無し | 畑 | 有り (439.66 ㎡) |
| 設備 |
|
||
| その他の特長 | |||
交通・周辺環境
| 最寄り駅・バス停 | 鹿子前入口(バス停) | ||
|---|---|---|---|
| 最寄り施設 | 佐世保市相浦地区コミュニティセンター | ||
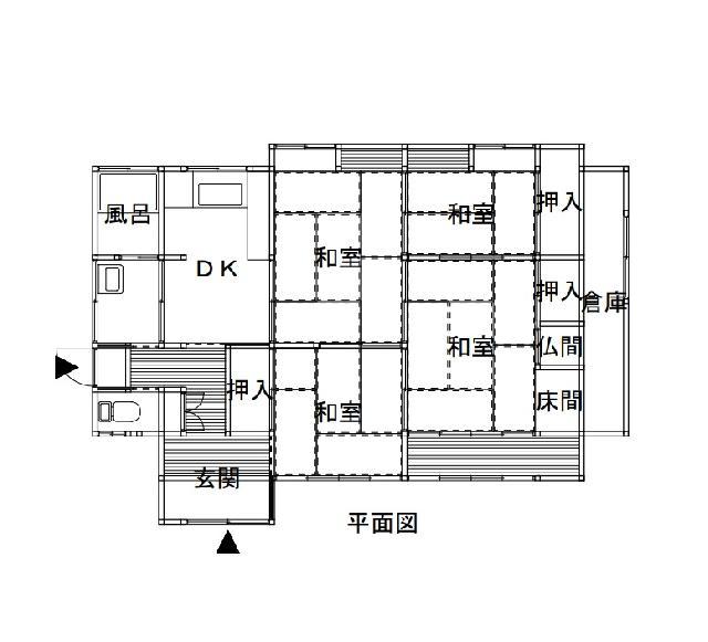
間取り図 [-]
※現況と図面に相違があった場合、現況を優先します。
※敷地境界は参考になりますので、売買の際は売主様とご確認をお願いします。
※敷地境界は参考になりますので、売買の際は売主様とご確認をお願いします。
担当者からのおすすめポイント
自然に囲まれた静かな場所です。一覧に戻る













































